Free Online Market Appraisal Valuation in just 60 seconds

CLICK HERE

Sold STC Land at Chapel Avenue, Wisbech St Mary

Guide Price  £500,000

Back to residential sales

Building Plot / Land

Key Benefits

Location

Full description

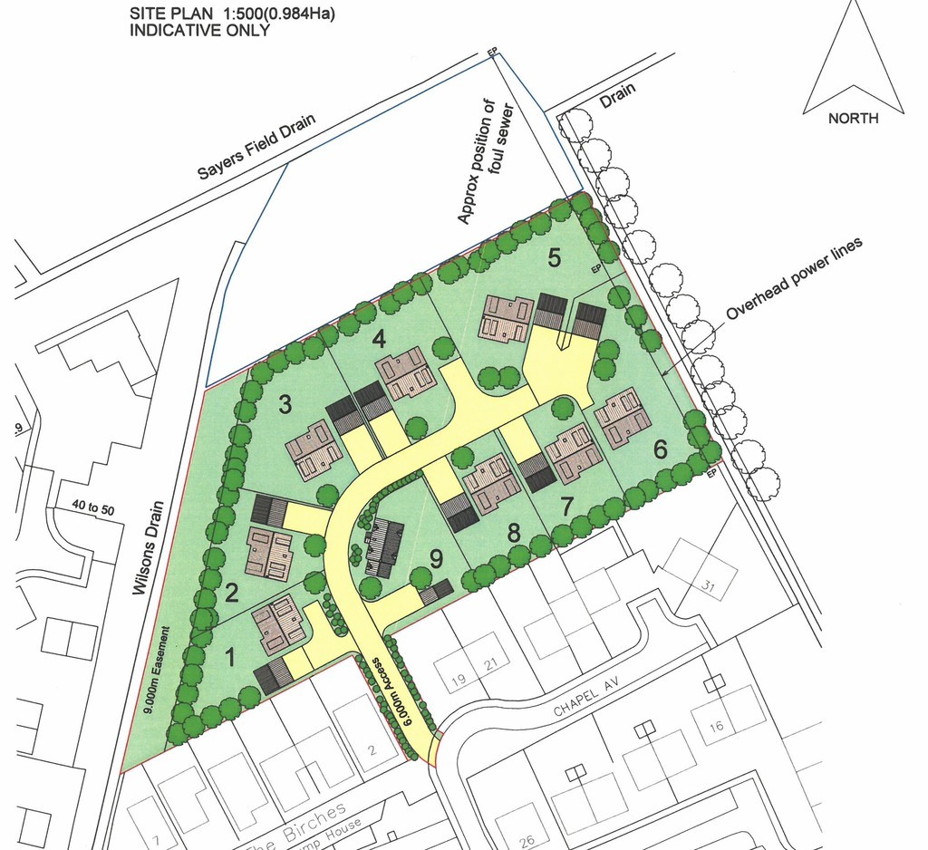
DESCRIPTION A Residential Development Site of 0.98 Ha together with an additional adjoining 0.3 Ha of land in the centre of Wisbech St Mary, with Outline Planning Consent for up to 9 dwellings with No S106 requirements attached.

LOCATION The site is situated in the heart of the village, with access from Chapel Avenue, in close proximity to the Primary School, Playing Fields, Local Shops and other village facilities, which are all within walking distance

PLANNING Outline Planning Consent was approved under ref F/YR23/0512/O by Fenland District Council on 13th December 2023 for up to nine dwellings. There is no S106 agreement attached to the consent. A copy of the consent is available for inspection on request or can be downloaded from the council website.
The indicative layout plan submitted with the application is reproduced on these particulars.

SERVICES It is understood that mains Water Electricity and Drainage are available to the site, but prospective purchasers should make their own enquiries of the relevant utilities

DEVELOPMENT OVERAGE COVENANT The land outside the existing consent , verged blu on the location plan, is included in the sale but subject to a development overage covenant reserving 50% of any uplift in value resulting from consent on this land for residential or commercial value to the vendor for a period of 20 years.

METHOD OF SALE The property is for sale freehold with vacant possession, and offers are invited around the guide price level. Prospective purchaser will be expected to demonstrate funding availability for the purchase

Ready to view?

Call our Wisbech Professional Office on

01945 428830 Arrange a viewing

Back to top

Maxey Grounds uses cookies to improve our website and your user experience.
By clicking any link or continuing to browse, you are giving your consent to our Cookie Policy.
Accept