Free Online Market Appraisal Valuation in just 60 seconds

CLICK HERE

For Sale Pius Drove, Upwell, Wisbech

Asking Price Of  £250,000

Back to residential sales

Unconverted Barn

Key Benefits

Location

Full description

LOCATION The property is located on the north east side of Pius Drove in the popular West Norfolk village of Upwell. Upwell is an historic village with a population of around 3,000 people and lies between Wisbech and Downham Market.

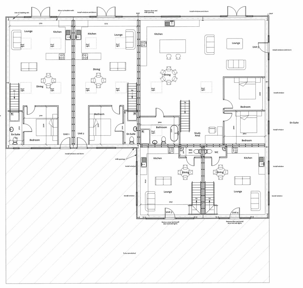
DESCRIPTION An L-shaped agricultural barn of steel frame construction with concrete floor and profiled sheet steel walls and roof extending to approximately 372.8 sq m (Subject to Measured Survey). Front canopy and concrete apron.

PLANNING Approval for five residential dwellings under Class Q of the Town and Country Planning (General Permitted Development (England) Order 2015 was confirmed by the Borough Council of King's Lynn and West Norfolk on 25th July 2024 under Reference 24/01027/PACU3. The approved plans provide for five two storey dwellings with four being 2 Bedroom and one being 3 Bedroom. Copies of the plans are available on the Borough Council website or from the Agent. Whilst the Borough Council of King's Lynn and West Norfolk has adopted CIL, they have confirmed that this development will not require a CIL payment if carried out as currently approved.

POSSESSION The property is offered For Sale Freehold with Vacant Possession upon completion.

BOUNDARIES The plan is for illustrative purposes only. The Buyer will be deemed to have full knowledge of all boundaries.

ACCESS Access to the property will be via a right of way over the existing driveway to be shared with the farm and others.

PLAN AND AREAS This Brochure has been prepared as accurately as possible, based upon Ordnance Survey plans. The plan has been prepared for Identification Purposes only and, although they are believed to be correct, their accuracy is not guaranteed.

WAYLEAVES, EASEMENTS AND RIGHTS OF WAY The property is offered subject to all existing rights, including rights of way whether private or public, light, support, drainage, water and electricity supply and other rights, easements, quasi easements and all wayleaves whether referred to or not in this Brochure.

VIEWING Viewing is strictly by appointment with the Agent. The Health and Safety of those viewing is the responsibility of the individual undertaking the viewing. Neither the Seller nor the Agent accept any responsibility for damage or injury to persons or property as a result of viewing the property and parties do so entirely at their own risk.

AGENT'S NOTES 1. The approved plans provide for the demolition of part of the front canopy together with the adjoining building. This work is to be carried out by the Buyer at their own expense.

2. The separation of the current electricity and water supply to the building from the retained yard will be at the expense of the Buyer.

Ready to view?

Call our Wisbech Professional Office on

01945 428830 Arrange a viewing

Back to top

Maxey Grounds uses cookies to improve our website and your user experience.
By clicking any link or continuing to browse, you are giving your consent to our Cookie Policy.
Accept